المدن الصناعية تطرح عطاء تنفيذ المرحلة الأولى من الزرقاء الصناعية
أنباء الوطن - بما يتوافق مع برنامج أولويات عمل الحكومة للأعوام 2021 - 2023
المدن الصناعية تطرح عطاء تنفيذ المرحلة الأولى من الزرقاء الصناعية
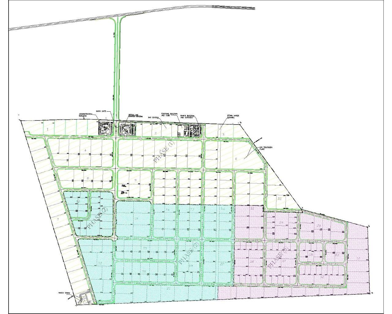
طرحت شركة المدن الصناعية الاردنية اليوم عطاء تنفيذ المرحلة الاولى من مدينة الزرقاء الصناعية على مساحة (1116) دونم والتي تتضمن كافة الأعمال الإنشائية للمدينة واقامة مباني صناعية على مساحة (22) الف متر مربع، حيث تقع المدينة على بعد (30) كم الى الشرق من مدينة الزرقاء باتجاه الازرق وعلى بعد (15) كم عن المنطقة الحرة في الزرقاء.
وبين مدير عام شركة المدن الصناعية الاردينة عمر جويعد إن البدء بالأعمال الإنشائية للمرحلة الاولى من مدينة الزرقاء الصناعية يأتي في سياق برنامج أولويات عمل الحكومة للاعوام (2021-2023) الرامي إلى احداث التنمية في مختلف مناطق المملكة وخلق المزيد من فرص العمل للشباب الأردني اضافة الى جعل المدن الصناعية الاردنية البيئة الأمثل للاستثمار الصناعي من خلال ما توفره من مزايا استثمارية وخدمات مساندة تسهل عمل الإستثمارات الصناعية.
وأوضح جويعد إن طرح العطاء جاء بعدما أنهت الشركة الدراسات اللازمة للمشروع وشملت دراسات الأثر البيئي واعادة تحديث التصاميم اللازمة للمدينة، حيث سيشتمل تنفيذها وفقا للمخططات على ثلاثة مراحل موزعة على إجمالي مساحة المدينة الكلية والبالغة (2500) دونم، متوقع الإنتهاء من مرحلتها الأولى خلال عامين بعد احالة العطاء على الجهة المنفذة.
وأكد جويعد على أهمية إنشاء المدينة الصناعية في محافظة الزرقاء نظرا لموقعها الإستراتيجي الذي يقع على الطرق الدولي المؤدي إلى دول الجوار (العراق، السعودية، سوريا)، وقربه من العديد من الإستثمارات الصناعية المنتشرة في محافظة الزرقاء اضافة الى وفرة الأيدي العاملة وقربها من مناطق السكن والخدمات مما يشكل حافزا لكافة الإستثمارات الصناعية لبدء اعمالها في المدينة والإستفادة من الحوافز والمزايا الإستثمارية التي ستقدمها حال جاهزيتها.
وتوقع جويعد أن تشهد مدينة الزرقاء الصناعية حال جاهزيتها استقطاب العديد من الإستثمارات الصناعية في العديد من المجلات الانتاجية كالصناعات الغذائية والكيماوية والتعبئة والتغليف والهندسية وغيرها.
وجدد جويعد تأكيده أن المدن الصناعية الاردنية التي تطوّرها الشركة وتديرها وتسوقها وفقا لأرقى المواصفات العالمية باتت مثالا يحتذى في التصميم لإستقطاب الإستثمارات الصناعية، اضافة الى دورها التنموي وانعكاساتها على المجتمع المحلي وفقا للتوجيهات الملكية السامية الرامية الى احداث تنمية حقيقية في مختلف مناطق المملكة وتوزيع مكاسب التنمية.
وتشتمل اعمال المرحلة الأولى على اعمال الحفريات وتسوية القطع الصناعية واعمال تصريف مياه الامطار، اضافة الى شبكات البنية التحتية من مياه وكهرباء واتصالات وانارة الشوارع واطفاء الحريق، فضلا عن الأبنية الإدارية للمدينة التي تضم بين جنباتها مباني الخدمات وخزان الماء العلوي.
يذكر أن شركة المدن الصناعية الارنية أنهت مؤخرا الأعمال الانشائية للمراحل الأولى للمدن الصناعية الجديدة في محافظات السلط ومأدبا والطفيلة وبدأت بخخطها الترويجة لإستقطاب الإستثمارات الصناعية اليها فيما تتواصل وتيرة العمل والإنتاج في المدن الصناعية العاملة في سحاب والموقر والكرك واربد والعقبة والمفرق الصناعية.



